On The Boards

Here's a little behind-the-scenes peek into our active projects, featuring a diverse portfolio that spans home renovations to tenant improvements, interior design, and branding. This section offers a glimpse into the dynamic design processes of our skilled team. Follow the progress, experience our design evolution, and see how we’re shaping meaningful spaces.
Commercial
Bite Society offers a true taste of Seattle’s culture for customers looking to grab high-quality and memorable snacks or gifts when traveling through the Seattle-Tacoma Airport’s new concourse C expansion. The overall design concept blends an upscale shop with plenty of playful Seattle edge and industrial grit – just like the products inside.
Hospitality
This refresh will enhance an existing cafe & bar in downtown Seattle for a more upscale aesthetic with some seriously fun art deco elements.
Residential
A cohesive interiors concept and layout for a new primary suite, an updated kitchen/living/dining area, guest rooms in the basement, entertainment room, and wine Room.
Residential
What began as necessary repairs has opened the door to a full rethinking of this mid-century lake house. The design prioritizes a calm material palette and a more intuitive layout that allows the views and lakeside lifestyle to take the lead.
Residential
This single-family residence in West Seattle plans to remodel the kitchen, completely renovate the basement, and possibly add a DADU over the existing garage.
Commercial
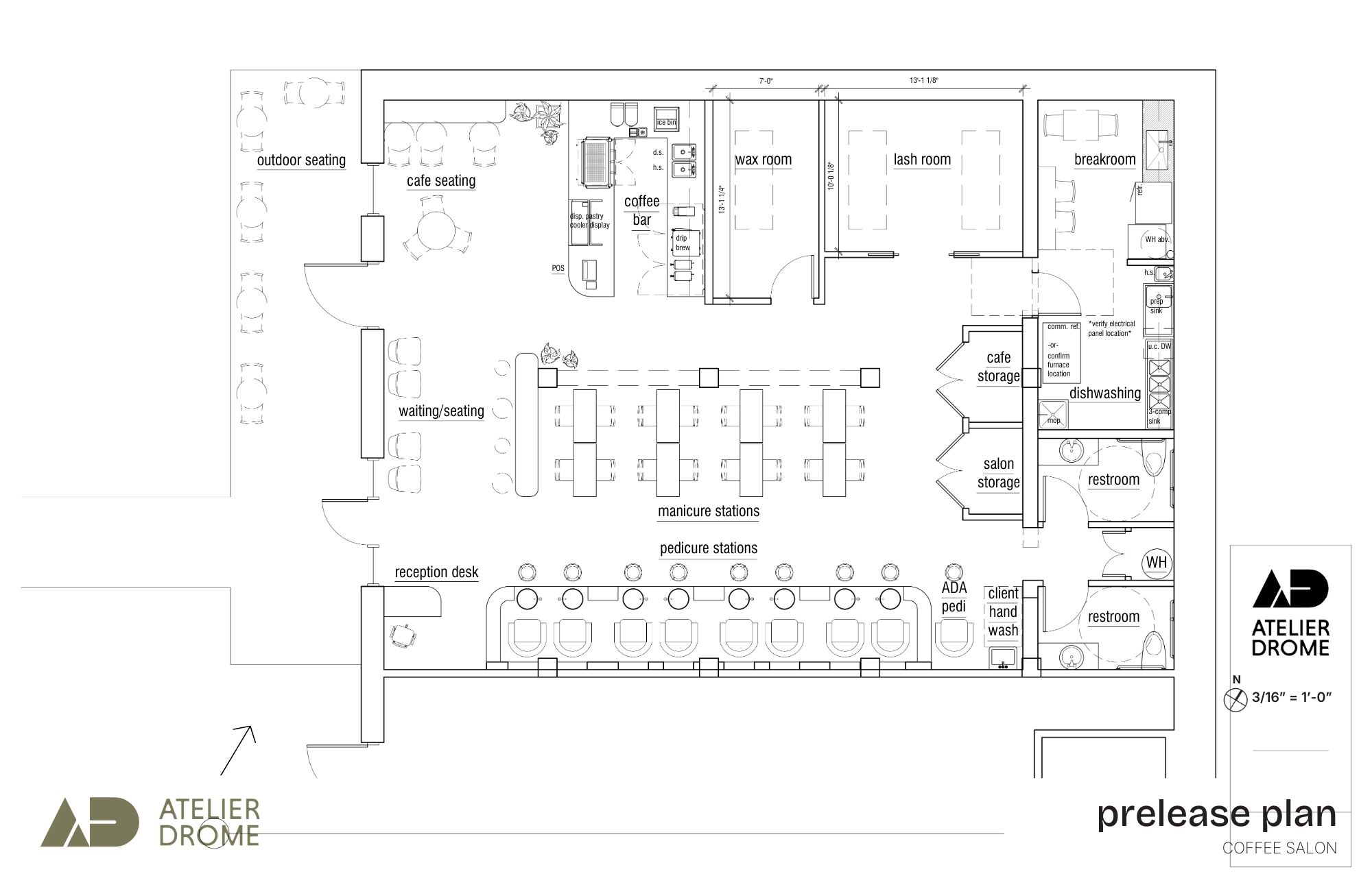
This salon and coffee shop hybrid will be designed for connection, calm, and a little indulgence. The idea blends two rituals of restoration: the grounding comfort of a good cup of coffee and the rejuvenation of self care for a shared environment that will be both social and serene.
Residential
The new sunroom for this floating home imagines a strong connection to the water with a light-filled space that expands the living area and can be enjoyed through 3–4 seasons. The addition will be bright, flexible, and ready for everything from quiet morning coffee to summer swims off the upper deck. (Yes, there will be a rope swing!)
Residential
Color, funkiness and lots of personality is what this home remodel in Redmond is all about! This playful update will enhance the home's good mid-century home by opening up the main spaces, enhancing the kitchen, adding a powder room for guests and reworking the primary bath for better functionality.
Multi-Family
This 5-story mixed-use development in Seattle's Fremont neighborhood features staggered architectural volumes with varied storefronts, brick facades, and enhanced pedestrian spaces to blend residential and commercial uses seamlessly.
Residential
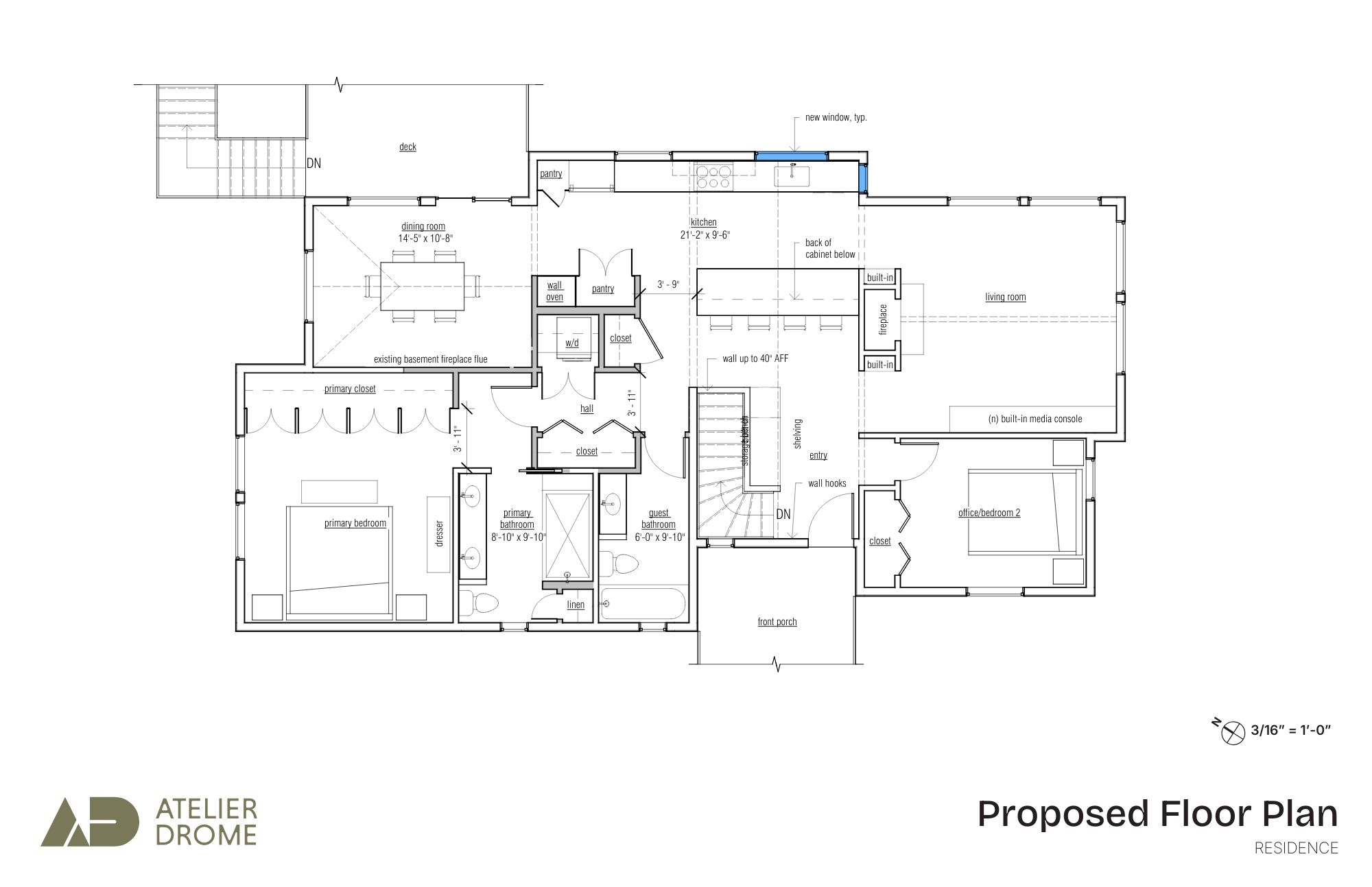
The modern take on rustic design contrasts light/dark colors and materials throughout the home. Since their home is over 6,300 SF with a lot of neutral elements, we thought it would be a great idea to introduce color at the built-ins and texture/pattern through tile to make each space feel special.
This main level remodel includes the kitchen, entry, primary suite, and secondary bathroom. The design right-sizes their kitchen, which was a little small for their home, and better utilizes a family-room. A large angled fireplace will be removed and the core of the main level reconfigured for better circulation, more light in the entry and an updated primary suite.
Hospitality
The Tacoma Coffee Shop, transitioning from a janitor's closet within an office building, is being designed to feature a neutral, curve-accented space that opens to the lobby, offering tenants a customizable area with a striking view.
Multi-Family
This refresh for Arbour Square in Denver, Colorado will reimagine the e leasing office, lobby, and key amenity areas by layering in new furnishings, updated finishes, and thoughtful architectural touches to elevate the resident experience.
Hospitality
This new fast casual dining experience is coming soon to Capitol Hill and will feel warm and homey, with earth tones and plants incorporated throughout.
Multi-Family
A unique infill project, this building aims to add 100 1-bed and family sized 2-bed apartments to an existing complex. The apartment complex currently consists of smaller 2-story apartment buildings surrounding a large grassy knoll. This new building will be located on that knoll, with a new amenity building located adjacent to the existing pool, creating a new recreational center for the complex.